Дерев’яні будинки під ключ від Закарпат Зруб-Буд180 $

Текст оголошення
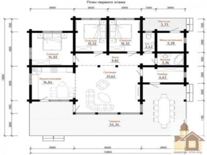
Мрієте про свій ідеальний дерев’яний будинок? Закарпат Зруб-Буд пропонує купити зруб, дерев’яний будинок під ключ або будинок з дикої колоди за вигідною ціною. Ми створюємо дерев’яні котеджі на замовлення, гарантуючи якість, екологічність та комфорт. Замовляйте свій зруб вже сьогодні та насолоджуйтесь натуральним житлом в Україні. https://www.srub-bud.net/case/zsb-odesa-veles-157/
Контактна особа

Zakarpat Srub-Bud

067xxxxxxxxПоказати

Написати автору
Деталі оголошення
Оголошення №11028
15 листопада 2025, 12:20
110 переглядів
Контактна особа

Zakarpat Srub-Bud

067xxxxxxxxПоказати

Написати автору
Деталі оголошення
Оголошення №11028
15 листопада 2025, 12:20
110 переглядів